Charmantes maisons contemporaines à Manilva
Description
Ce projet de charmantes maisons contemporaines à Manilva est situé dans l’un des meilleurs endroits d’Europe pour vivre grâce au climat, aux magnifiques vues panoramiques sur la mer et les montagnes et à l’abondance de choses à voir et à faire. Une enclave parfaite pour un style de vie détendu.
La phase 2 d’un fabuleux projet résidentiel à succès comprend 16 maisons mitoyennes de 3 chambres à coucher et est situé à Manilva, sur la Costa del Sol.
Ici, vous bénéficierez des meilleures et des plus spectaculaires vues sur la mer méditerranée, qui s’étendent jusqu’à Gibraltar, la côte marocaine et la baie d’Estepona. Toutes les maisons bénéficient de la meilleure orientation sud/sud-ouest. Un environnement idéal pour profiter de l’authentique style de vie méditerranéen.
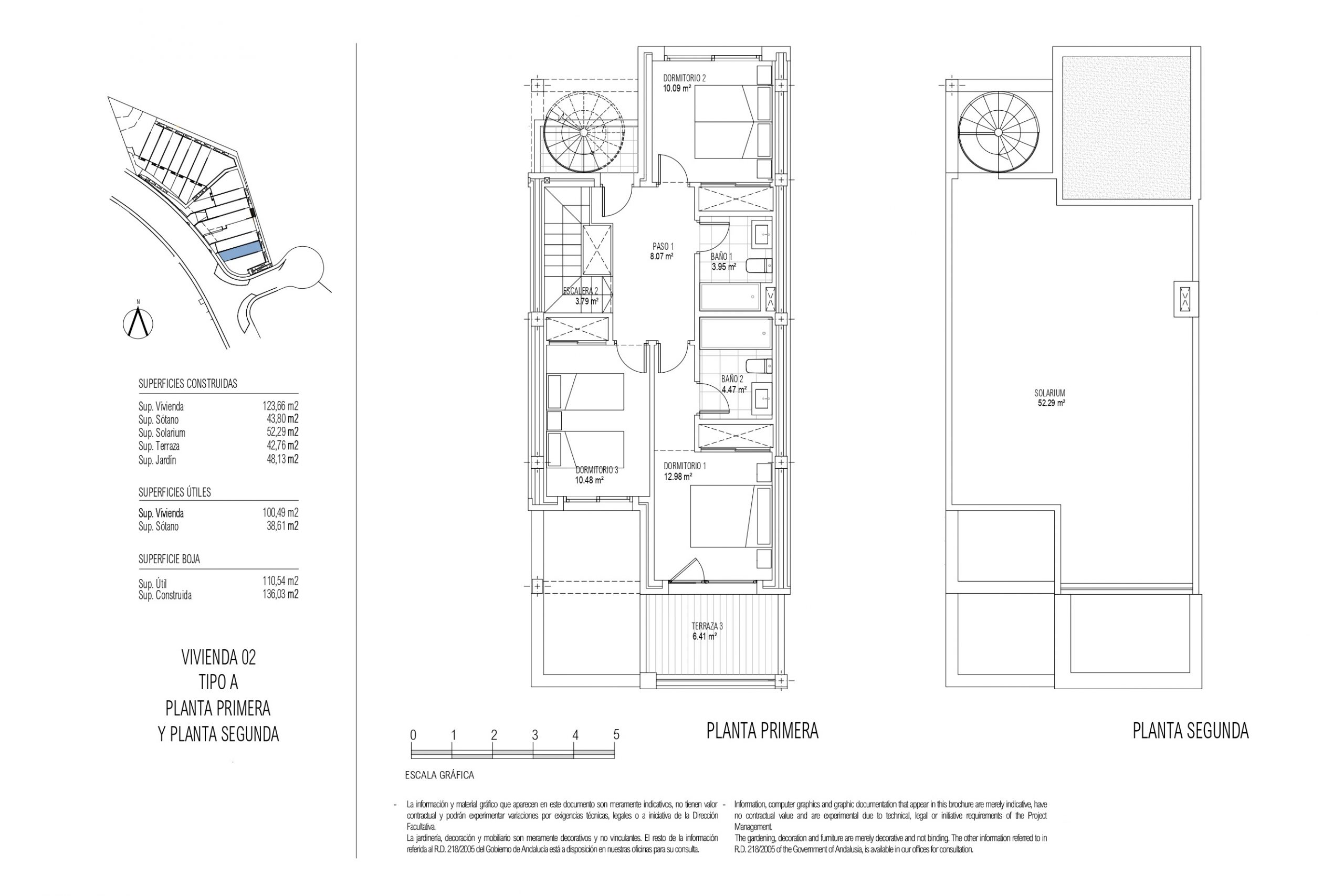
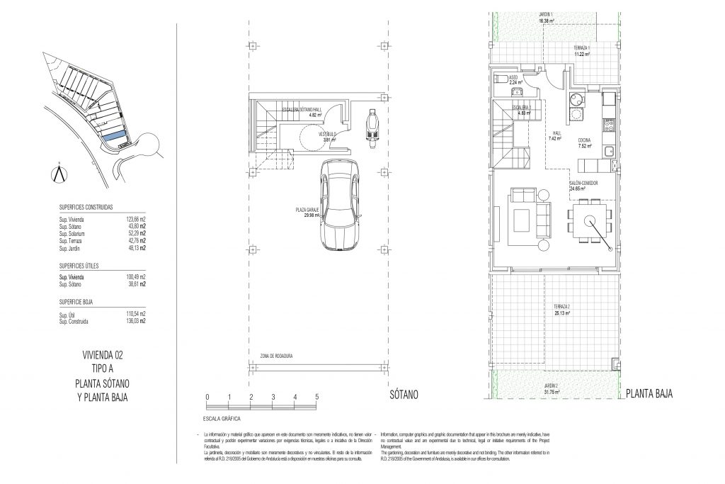
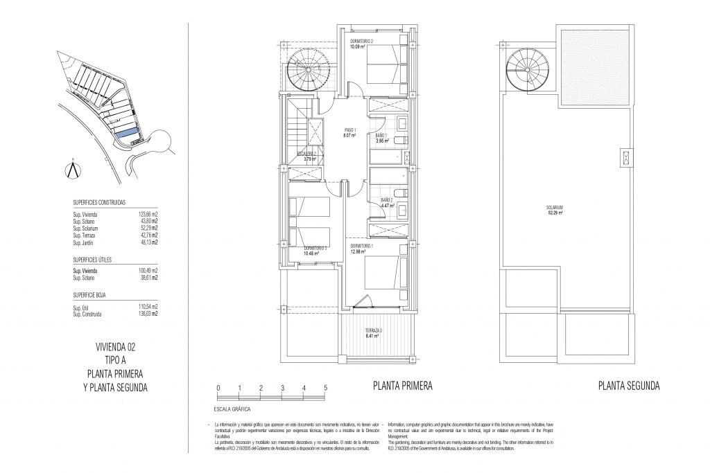
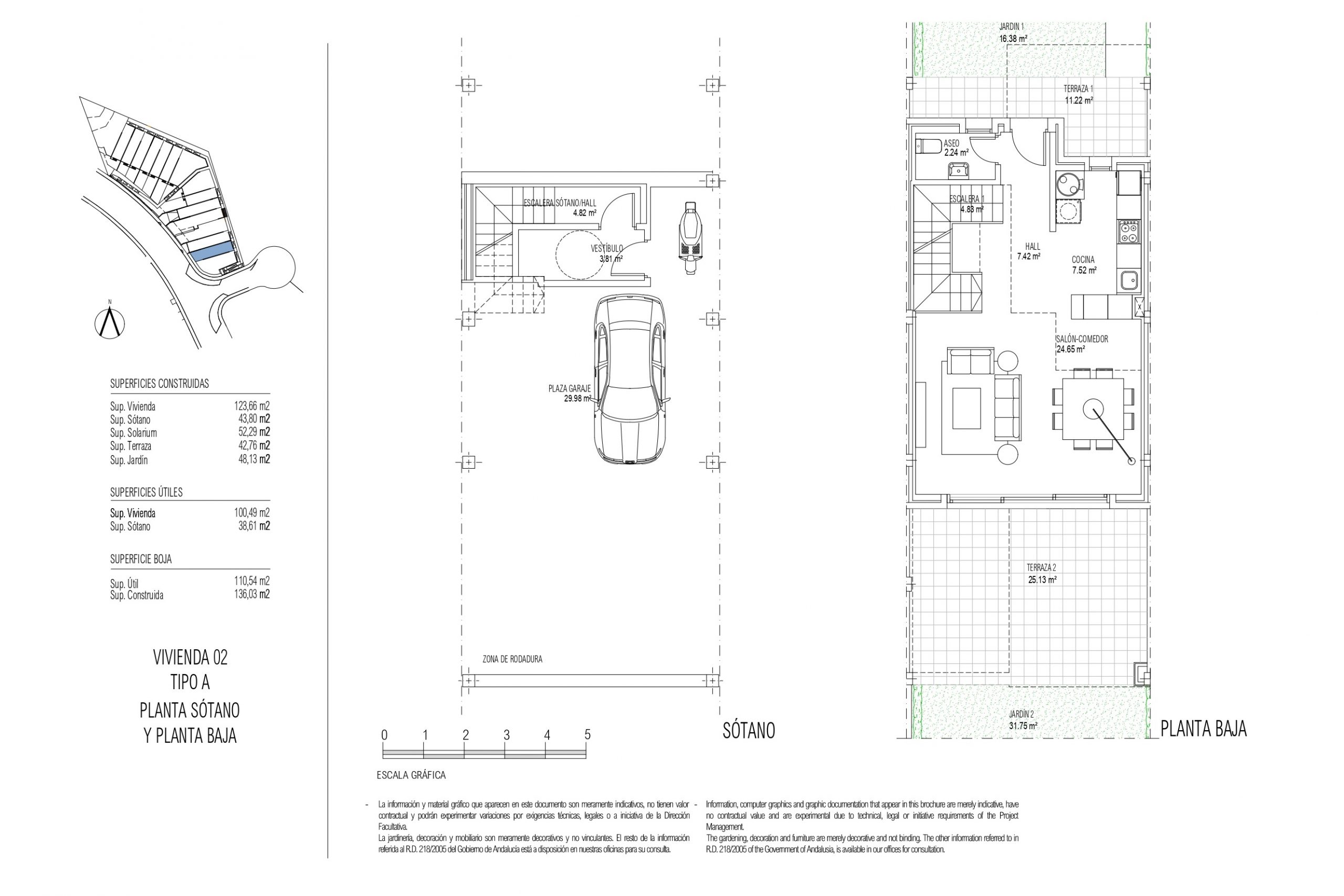
Ces charmantes maisons contemporaines à Manilva auront une surface totale dépassant les 130 m2 en moyenne. Les vastes solariums et les jardins privés avec piscine offriront différentes ambiances de détente à ses résidents. .
Le dénominateur commun est la vue et une conception architecturale de lignes pures qui agit comme un cadre pour que la nature envahisse chaque coin de votre maison et vous relie à l’environnement. Des finitions et des qualités soigneusement étudiées avec une palette de matériaux exquis caractérisent chaque pièce pour qu’elle devienne conviviale, chaleureuse et symbolique.
Pour votre sécurité, le complexe résidentiel est entièrement fermé et clôturé. Les parties communes sont équipées d’un éclairage LED pour une efficacité énergétique maximale, de bornes d’éclairage pour éviter la pollution lumineuse et de rampes d’accès.
Vous pourrez également profiter des parties communes accessibles à tous les résidents. La grande piscine sera équipée d’une technologie moderne de dernière génération comme le système de néolyse pour obtenir une qualité d’eau plus saine. Un court de paddle tennis et une aire de jeux pour les enfants seront également à votre disposition.
Qu’il s’agisse d’un excellent investissement, d’une première ou d’une deuxième résidence, d’une maison de vacances ou d’une résidence permanente pour commencer une nouvelle vie dans le sud de l’Espagne, ces charmantes maisons contemporaines à Manilva offrent une multitude d’endroits passionnants à visiter à courte distance.
La fameuse route de villages blancs commence ici. Avec leurs maisons typiques blanchies à la chaux et chargées d’histoire, elles reflètent l’architecture traditionnelle des ruelles pavées étroites et sinueuses.
Ces coins reculés d’Andalousie valent la peine d’être visités en y passant la journée à remonter le temps et peut-être à y déguster une cuisine typique avec une variété de plats. Casares, Ronda, Benahavís sont quelques exemples de villes alentour où le visiteur sera toujours accueilli avec le sourire.
Certains des meilleurs terrains de golf d’Europe ne sont qu’à 10 minutes de ces charmantes maisons contemporaines à Manilva. Le célèbre parcours de Valderrama, avec ses greens impeccables, accueille les prestigieux tournois internationaux tels que la Ryder Cup. Finca Cortesin est l’un des parcours de ce magnifique complexe classé parmi les meilleurs d’Europe par les médias les plus prestigieux.
Le bruit des vagues qui caressent le rivage, la sensation d’une brise fraîche et paresseuse qui effleure votre peau. Le bleu intense de la mer se confond avec le littoral africain. La vie sera sculptée de petits moments et de sensations intenses.
Énergie
Détails
-
Référence:ACDS8342
-
Superficie (m2):136 m2
-
Chambres:3
-
Salles de bain:3
-
Garages:2
-
Prix (€):À partir de527.000€
-
Livraison:2025
-
Orientation:Sud, Sud-Ouest
-
Vues:Mer, Golf
Équipements
- Accès mobilité réduite
- Air Conditionné
- Aire de jeux
- Court de padel
- Court de tennis
- Électroménager
- Enceinte fermée
- Interphone vidéo
- Jardins communs
- Jardins privés
- Personnalisable
- Piscine commune extérieure
- Piscine privée extérieure
- Sécurité
- Service de concierge
- Solarium
- Terrasse





