100% VENDU – Maisons de bord de mer à El Puig de Santa María
Description
Ce développement de maisons de bord de mer à El Puig de Santa María est un programme immobilier neuf situé dans un endroit privilégié, entouré par la nature et disposant d’un accès direct à la plage. C’est un lieu idéal pour qui souhaite vivre dans un environnement naturel en bord de mer.
Le complexe hyper moderne comprend des appartements, des penthouses et des maisons de ville de 1, 2, 3 et 4 chambres ainsi que des installations de haute qualité pour le plus grand bonheur des résidents.
Choisissez le bien qui vous convient le mieux parmi les différentes typologies. Tous les logements sont construits sur un concept d’ouverture avec des pièces contiguës exploitant au maximum la lumière naturelle présente toute l’année. Dans ces maisons de bord de mer à El Puig de Santa María, les grands salons reliant les vastes terrasses et la cuisine ouverte promettent harmonie et convivialité au sein du foyer du matin au soir.
Construit en suivant un principe d’excellence et de haute qualité, vous pouvez ensuite personnaliser votre logement à l’aide d’un catalogue complet de finitions, d’extras et d’ameublement afin de créer votre environnement parfait, à votre goût.
Une piscine chauffée, une piscine d’été, une piscine pour enfants, un solarium de gazon naturel avec chaises longues, parasols, douches, toilettes et éclairage, un espace sportif avec terrain de paddle tennis, des terrains multisports, des bancs et aménagements paysagers, une grande aire de jeux pour enfants, une salle polyvalente, un centre de remise en forme, un espace coworking entièrement équipé… Dans ce luxueux complexe face à la mer à Puig de Santa María, les zones communes sont une continuité de votre foyer, des espaces conçus pour votre bien-être. La résidence dispose donc de vastes espaces communs prévus pour que chacun y trouve son bonheur.
L’emplacement de ce programme immobilier neuf est imbattable. Situé dans un environnement naturel, loin de la surpopulation et pourtant proche de tout, il vous offre une vue unique et sans obstacle sur la mer méditerranée.
Tombez sous le charme des plus de 5 km de plages à votre porte parmi lesquels se distinguent la plage d’El Puig, la plage de Pedretes et la plage de La Pobla de Farnals, entourées d’espaces vierges et faites de sable fin. Restez connectés au monde grâce à tous les services de proximité : magasins, loisirs, restaurants, éducation, hôpitaux et centres de santé.
Le centre de Valencia ne se trouve qu’à 14 minutes en voiture et son aéroport international avec plus de 100 destinations à moins de 30 km. Grâce à ses excellentes liaisons de transport vous découvrirez très facilement un large éventail d’activités de loisirs et de services en tout genre.
Connue comme la « ville de la lumière » et où le style de vie méditerranéen est vécu dans toute sa splendeur. Valencia, la capitale du Turia abrite une richesse historique et culturelle dont vous tomberez amoureux. Vous découvrirez les lieux incontournables de Valencia tels que l’emblématique Cité des arts et des sciences, l’Oceanogràfic de Valencia, La Lonja de la Seda, classée au patrimoine mondial de l’humanité ; le parc naturel de l’Albufera, le marché central de Valencia, le Bioparc et le jardin de la Turia.
Énergie
Détails
-
Référence:ACDV9672
-
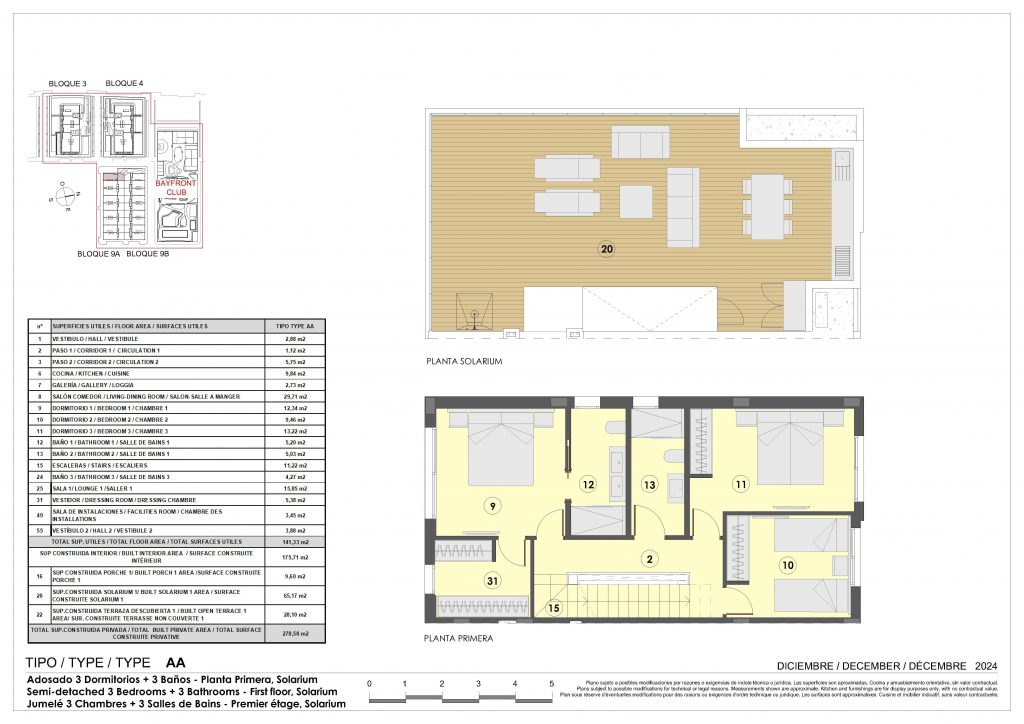
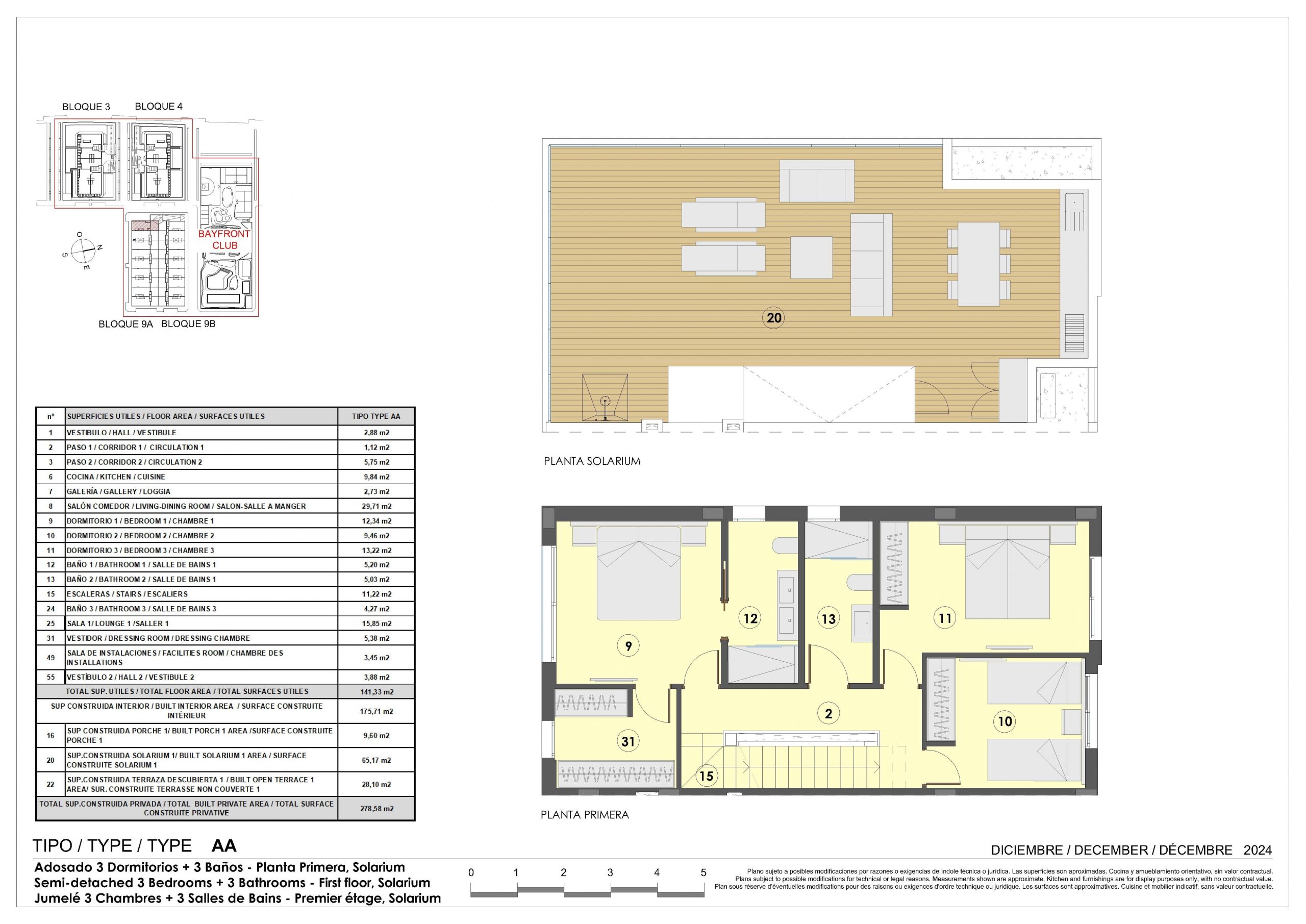
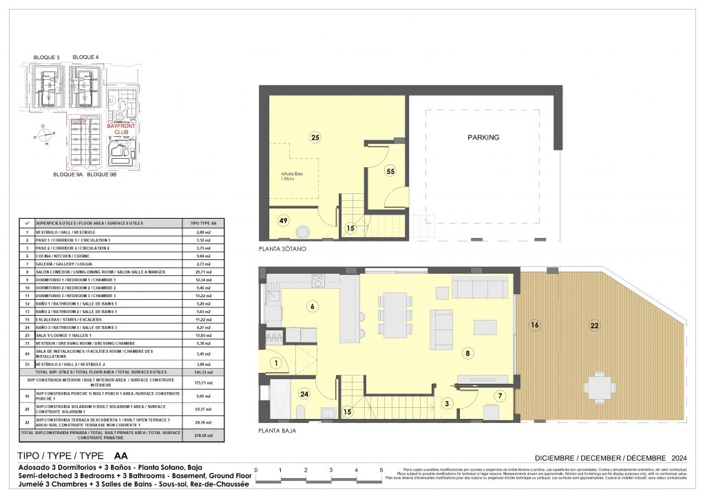
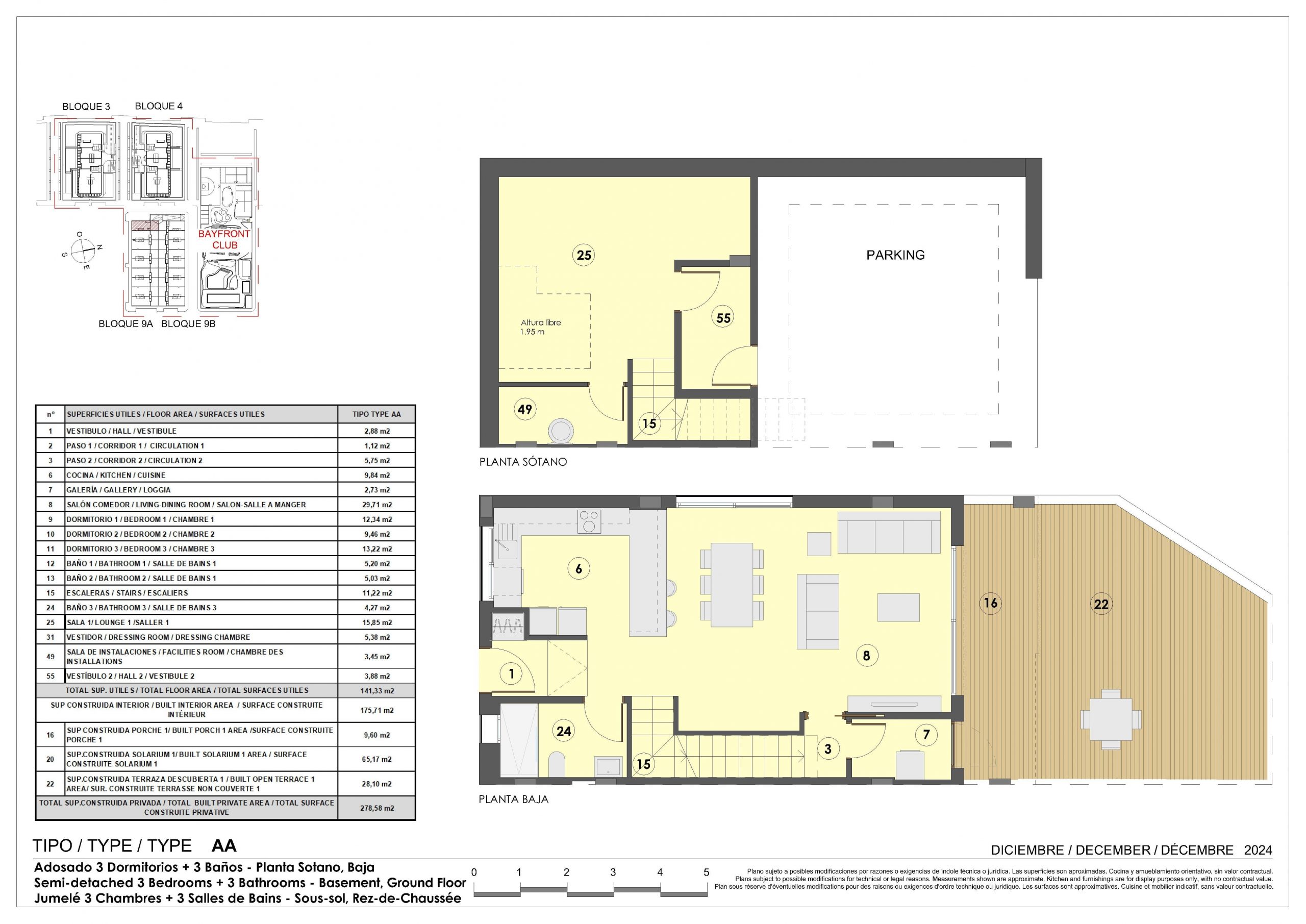
Superficie (m2):176 m2
-
Chambres:3
-
Salles de bain:3
-
Garages:2
-
Prix (€):À partir de447.000€
-
Livraison:2026
-
Orientation:Ouest
-
Vues:Mer
Équipements
- Accès mobilité réduite
- Air Conditionné
- Aire de jeux
- Buanderie
- Chargeur pour véhicule électrique
- Court de padel
- Court de tennis
- Électroménager
- Enceinte fermée
- Espace coworking
- Interphone vidéo
- Jardins communs
- Personnalisable
- Piscine commune extérieure
- Salle de sport
- Salle polyvalente
- Sécurité
- Solarium
- Terrasse





