Programme neuf au bord de la lagune de Torrevieja
Description
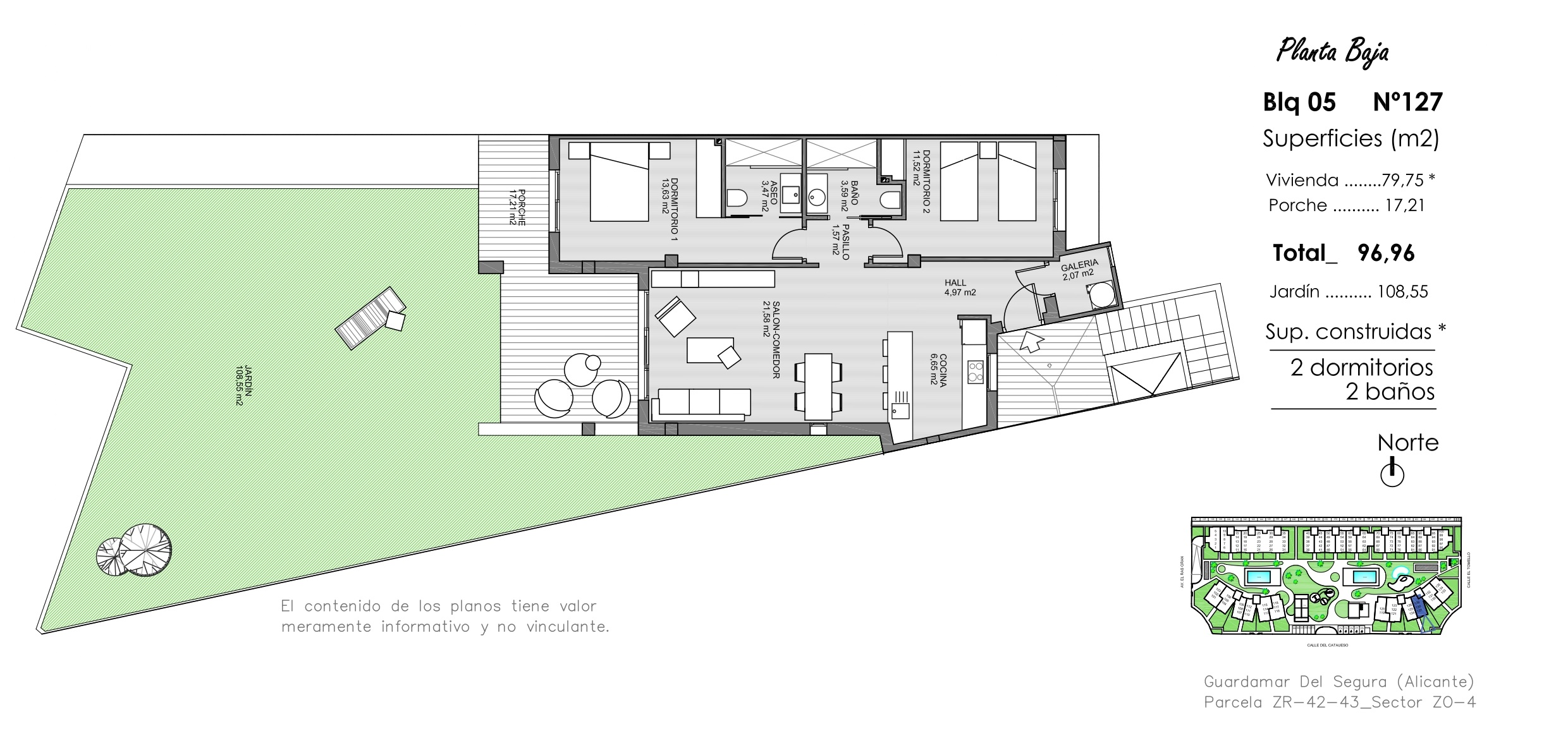
Ce programme neuf au bord de la lagune de Torrevieja est un complexe résidentiel privé, composé de 135 appartements de 2 ou 3 chambres à coucher, conçus de manière minimaliste et avec des normes de qualité élevées.
Son architecture moderne s’harmonise avec les grands espaces, la nature et les piscines, offrant une atmosphère unique et paisible.
Le projet, livré en août 2025, est situé sur un terrain unique, en bordure du paysage naturel de la lagune salée. Vous pourrez ainsi profiter de sa biodiversité et de son environnement inégalable, à proximité des meilleures plages de la Méditerranée.
El Raso de Guardamar del Segura, offre toutes sortes de services et d’équipements. En même temps, grâce à la proximité de la plage d’El Moncayo, vous pourrez vous promener à vélo et profiter du meilleur climat de la Costa Blanca.
Ce programme neuf est un pas en avant par rapport à d’autres complexes résidentiels, comprenant un espace gym & spa vitré avec vue sur les espaces verts, les piscines et depuis sa terrasse donnant sur la lagune salée de La Mata, un court de paddle-tennis, etc.
De plus, grâce aux cinq niveaux de certains des blocs qui composent la résidence, tous orientés vers le sud, une cuisine d’été entièrement équipée sur le solarium est incluse, une douche extérieure (eau chaude/froide) et une zone de jacuzzi, pour compléter l’expérience unique de vivre face à un environnement naturel unique et irremplaçable, seront également installées.
Énergie
Détails
-
Référence:ACB8681
-
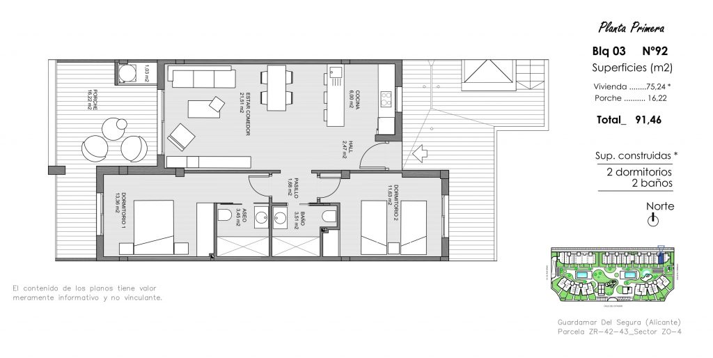
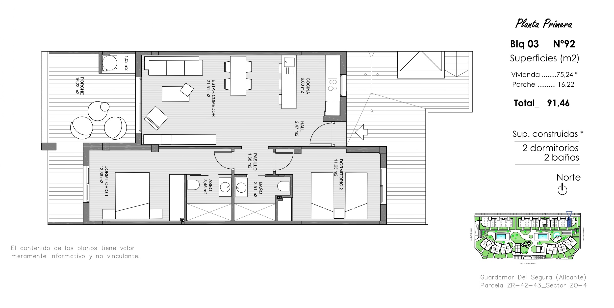
Superficie (m2):91,46 m2
-
Chambres:2
-
Salles de bain:2
-
Garages:1
-
Prix (€):À partir de264.000€
-
Livraison:2025
-
Orientation:Sud
Équipements
- Accès mobilité réduite
- Air Conditionné
- Aire de jeux
- Chargeur pour véhicule électrique
- Court de padel
- Électroménager
- Enceinte fermée
- Interphone vidéo
- Jacuzzi
- Jardins communs
- Jardins privés
- Personnalisable
- Piscine commune extérieure
- Piscine commune intérieure
- Salle de sport
- Sauna
- Sécurité
- Solarium
- Spa
- Terrasse





